Zur Startseite
Startseite Kontakt Termine Der Verein Impressum Sitemap
Stuttgarter Hütte

Aktivitäten
Ausstattung
Anfahrt
Preise
Kontakt
Hüttenordnung
Die Abteilung
Stuttgarter Hütte

Die Raumaufteilung der gesamten Hütte gibt dem Aufenthalt einen
gemütlichen Gemeinschaftsflair. Zünftige Hüttenabende sind somit
gewährleistet.

Die maximale Belegungszahl liegt bei 24 Personen.

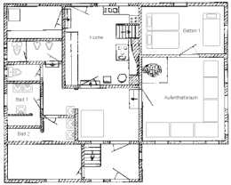
Das Untergeschoss mit 
der Küche, den 
Gemeinschaftsräumen 
und den Sanitäranlagen.

Innenansichten des Untergeschosses
Die Zimmer im 
Obergeschoss 
sind mit Stockbetten 
ausgerüstet.

Innenansichten des Obergeschosses